Ref. V01196
Solar urbano con casa de diseño terminada o Solar con licencia

1.290.000€

Felanitx
250m2
Construidos
4
Habitaciones
4
Baños
1
Plazas de Parking

Piscina
539m2
Terreno
Solar urbano con casa de diseño terminada o Solar con licencia
Felanitx / Mallorca

Nueva licencia de obra otorgada!

 

Solar de unos 539m2  en esquina ,ubicado en un a zona tranquila ,Está a las afueras del pueblo pero a 5 minutos a pie de la zona céntrica.

Tiene unas vistas espectaculares a las montañas del  " Calvari".

 

Solo el solar con licencia 385.000€

Solar con casa terminada 1.290.000€

 

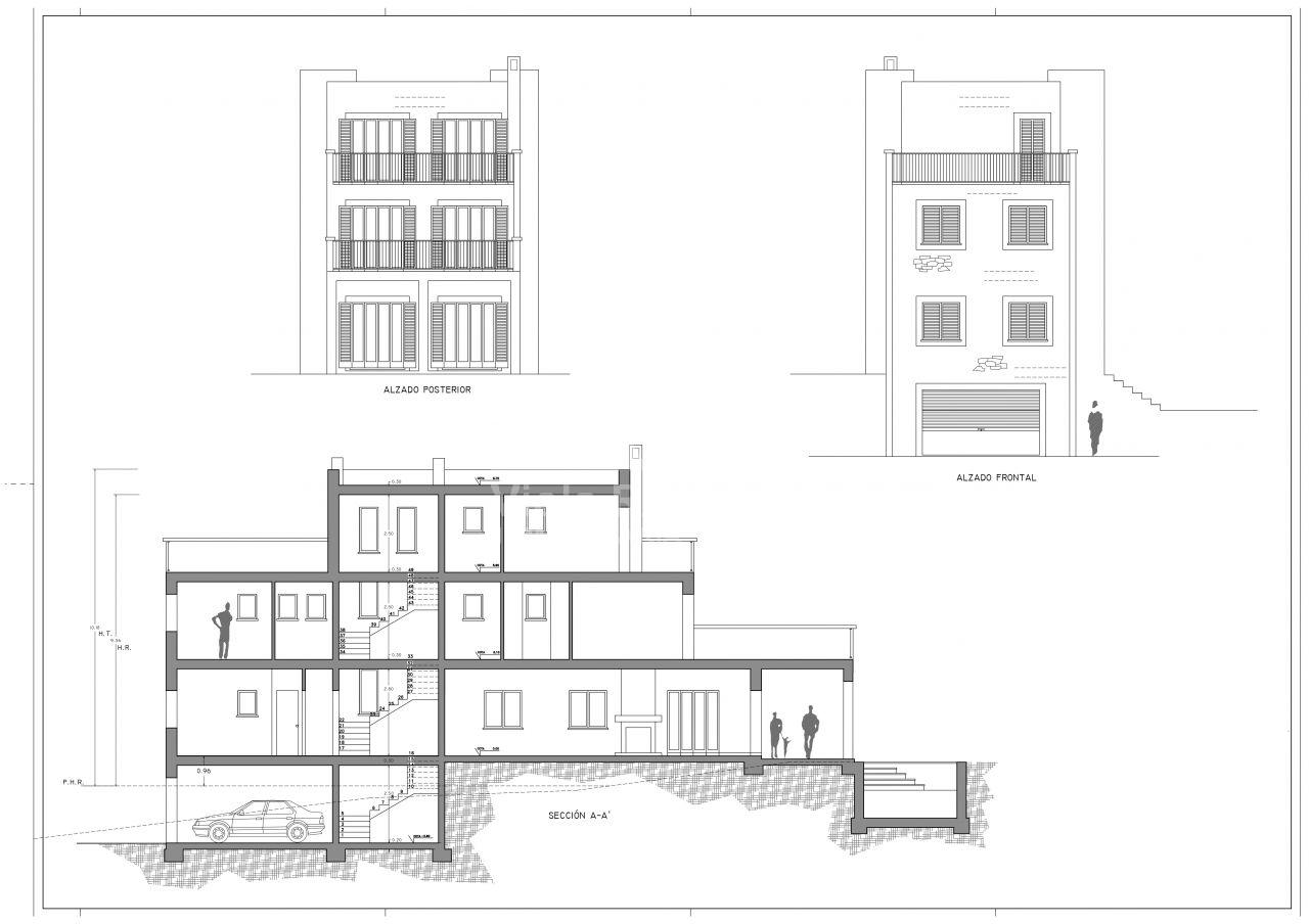
En el proyecto se describe una vivienda unifamiliar de unos 250m2 , 3 alturas y un sótano a modo de garaje.

En la planta baja de 95m2 hay un recibidor, un salón comedor con cocina abierta , y un dormitorio con baño.

La zona exterior esta formada por una terraza cubierta de unos 18 m2, zona de solarium y una piscina de 21m2-

En la primera planta de unos 76m2 encontramos dos dormitorios con baño en suite. Uno de ellos con salida a una terraza de 33 m2-

En la planta segunda de unos 40m2 se ha ubicado una habitación estudio con un baño y una terraza de unos 13 m2.

La planta sótano de unos 28 m2 está concebida como garaje con acceso a la planta baja de la vivienda.

 

Para la calefacción se instalará suelo radiante.

En suelos de interior se utilizarán baldosas cerámicas de gres esmaltado y piedra natural en paredes y fachada.

Toda la construcción se relizará con materiales y acabados de alta calidad

Opción de personalización: Como la construcción no está en curso, el futuro propietario podrá personalizar algunos detalles del proyecto, logrando un espacio adaptado a sus gustos. Las modificaciones adicionales podrán acordarse según disponibilidad y presupuesto.

Se estima la obra terminada en 1 año y medio aproximadamente

 

 

 

hola
Recibir Información
Sobre este inmueble
Propiedades relacionadas
Mallorca