Ref. V00332
TERRENO CON PROYECTO EN SANTANYÍ

A CONSULTAR

Santanyi
330m2
Construidos
4
Habitaciones
3
Baños
2
Plazas de Parking

Piscina
16600m2
Terreno
TERRENO CON PROYECTO EN SANTANYÍ
Santanyi / Mallorca

Terreno de 16.600 m2 con bonitas vistas a escasos minutos del pueblo de Santanyí.

Totalmente cerrado de pared de piedra.

Proyecto de construcción aprobado por la Conselleria, pendiente de pedir licencia de ejecución.

Posibilidad de luz y agua.

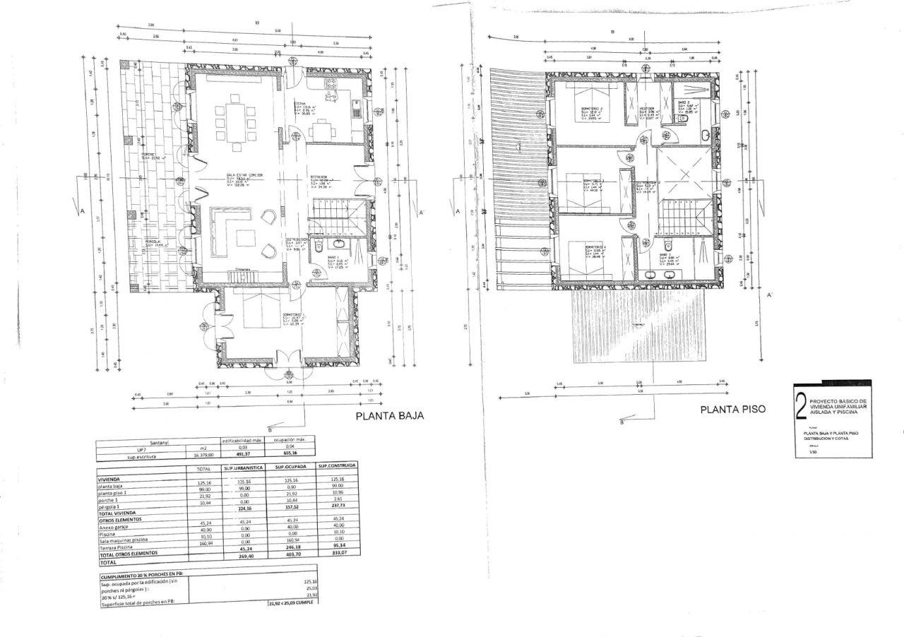
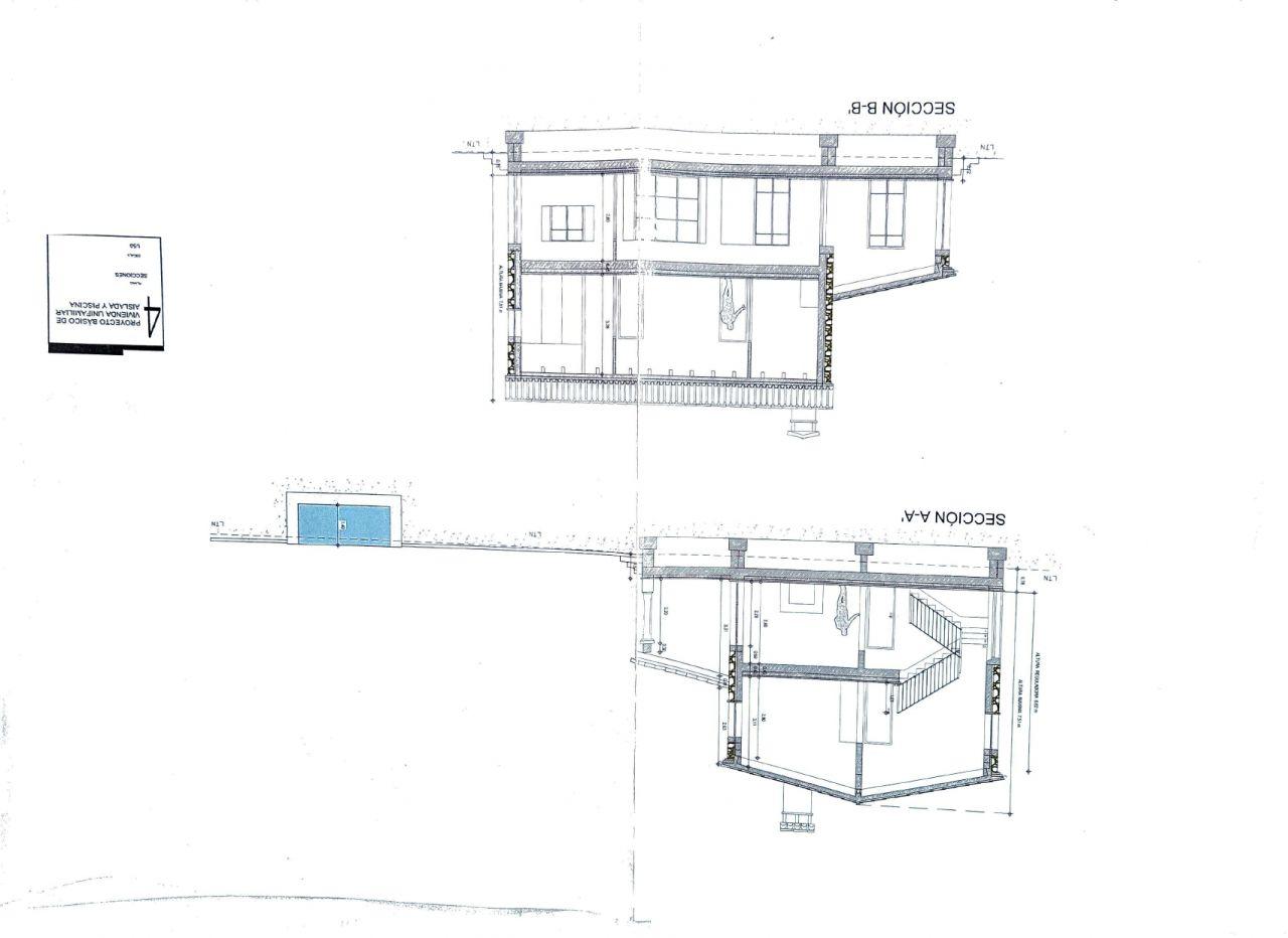
Según los planos está prevista un construcción de una casa unifamiliar de 2 plantas , con un tamaño aprox de 224m2.

La planta baja de aprox 125 m2 tendrá una amplia entrada, 1 dormitorio y un baño. Un salón comedor con salida a un porche de aprox 10m , en la zona de jardín y piscina. Todas las estancias tendrán ventanales .

La primera planta de aprox 99 m2 , tendrá 3 habitaciones y 2 baños.

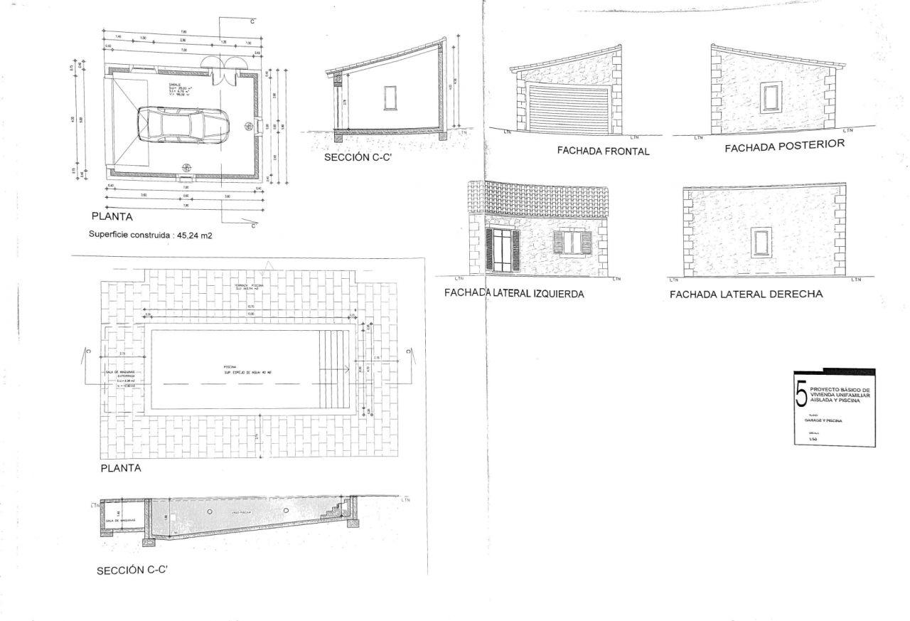
En la zona exterior encontramos un garaje cubierto de aprox 45 m2 y una piscina de aprox 40 m2 con zona ajardinada

 

 

 

 

hola
Recibir Información
Sobre este inmueble
Propiedades relacionadas
Mallorca