Ref. V00128
Terreno Edificable en Son Mesquida. Con proyecto Básico aprovado

449.000€

Son Mesquida
462m2
Construidos
7
Habitaciones
5
Baños
2
Plazas de Parking

Piscina
27537m2
Terreno
Terreno Edificable en Son Mesquida. Con proyecto Básico aprovado
Son Mesquida / Mallorca

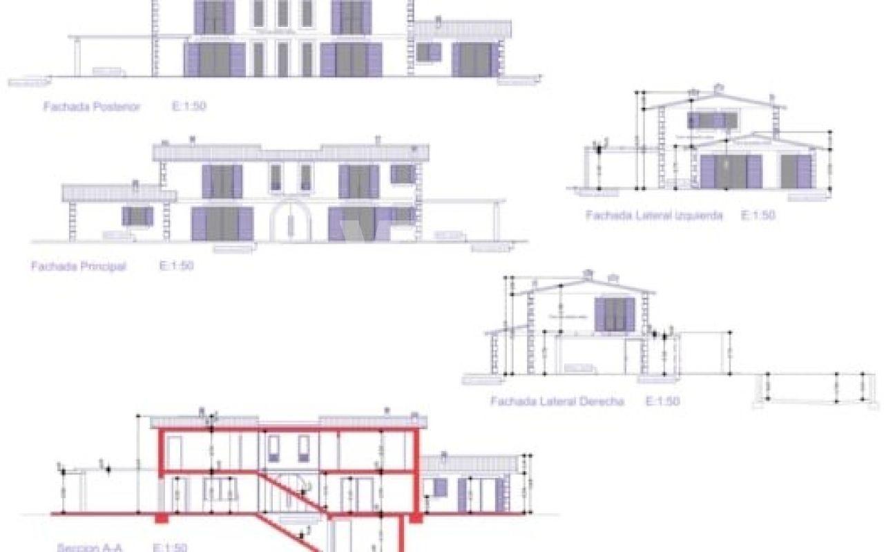
Terreno edificable, totalmente vallado. La licencia para el proyecto básico ya ha sido concedida, por lo que el cliente tiene la opción de modificar la casa según sus deseos.

En el proyecto básico se ha presentado una finca de 5 dormitorios con baños en suite, por lo que aún puede diseñar la distribución de las habitaciones. Los planos también incluyen un amplio salón-comedor con cocina americana.

La característica especial de esta casa de campo:
El salón está separado del comedor por un patio acristalado.

Todas las habitaciones de la planta baja tienen acceso a una terraza envolvente.
También encontrará los dos primeros dormitorios con baños en suite, un aseo y un práctico trastero. La cochera contigua con espacio para dos coches.

Una escalera central conduce a la planta superior con 3 dormitorios con baños en suite y una oficina que podría ser utilizada como otro dormitorio.
El dormitorio principal tiene un gran cuarto de baño con vistas a la Sierra de Tramuntana.
Todos los dormitorios tienen armarios empotrados.

Con vistas a la amplia piscina orientada al suroeste, disfrutará al máximo de cada puesta de sol.

La sala técnica se encuentra en el sótano.

 

Datos de un vistazo:

- Precio de compra: 495.000 EUR
- Superficie parcela: aprox. 27.537 m2
- Superficie construida: aprox. 462 m2
- Superficie habitable: aprox. 239 m2
- Número de habitaciones: 7
- Número de oficinas 1
- Número de dormitorios 5
- Número de baños 5
- Número de WC separados 1
- Construcción sólida
- Total plantas: 3
- Trastero y bodega
- Terraza
- Piscina
- Cochera para 2 vehículos
- Licencia para el pozo disponible

-Sotano 

-Baño de invitados

-Lavanderia

 

 

Descripción de los alrededores - Felanitx

Gracias al entorno de Son Mesquida, podrá vivir aquí en paz y relajado. proximidad a todas las comodidades importantes de la vida diaria. Supermercados, médicos y farmacias están a sólo unos minutos en coche La ubicación es ideal para familias con niños, ya que se pueden encontrar escuelas primarias y secundarias en las inmediaciones. Son Mesquida se encuentra en el sureste de la isla y pertenece al municipio de Felanitx. El pueblo se encuentra a los pies del monasterio de Sant Salvador. El puerto natural más grande de Mallorca, Portocolom - que pertenece a Felanitx - se encuentra a 10 minutos en coche y ofrece muchas oportunidades para relajarse con sus numerosos restaurantes, bares y cafés,
El exclusivo campo de golf de 18 hoyos Vall d'Or también está a unos 15 minutos en coche y el aeropuerto a unos 35 minutos.

hola
Recibir Información
Sobre este inmueble
Propiedades relacionadas
Mallorca